Plaza Project
PRESENTATION | NWA DESIGN SURVEY | IMAGE LIBRARY | DESIGN TEMPLATES
NW Academy is redesigning the space between the Plaza and Century Tower buildings. Students, faculty and staff are invited to share design ideas and be part of the process.

Short-term + Long-term Goals. Over the next 1-5 years, we can do bigger improvements. Right now, we can do smaller, yet impactful, less permanent changes that make the space more active, safe and engaging for all. For this first phase, improvements will need to be lightweight, lower cost, weather-resistant, and easy to install (without design review by the city). We’ll vote to pick the top designs and then install our Phase 1 design in August with help and involvement from students.

Design opportunities include the walls, ground, sidewalks, and in the air between the buildings.
Possible improvements include:
– painted murals on walls or ground
– seating, plants, planters
– entry barriers and lighting
– art and interactive fun
DESIGN SURVEY
Students and faculty have already been sharing lots of great input! Nature, environment, and art are overriding “themes” so far.

Take the Survey now to add input or View the Design Survey Responses to see ideas so far.
Feel free to take inspiration from themes, preferences, and other ideas you like no matter where they come from!
HOW TO CREATE YOUR DESIGN*
STEP 1 – Review the Intro Presentation
STEP 2 – Get Inspiration! – See the Inspiration Sources linked below
STEP 3 – Create your Design – Use our Template or think outside the box! Details below.
STEP 4 – Submit your Design! Take a photo (or scan your design), then email it to lisa.twinpower@gmail.com by 6 pm on Monday, May 22
*If you have already submitted your design plans on paper and want to add to your designs, you can just download your submission here, add to it and resubmit.

INSPIRATION
Below are resources we developed to help you brainstorm and represent design concepts including templates, design presentation strategies, and sources of inspiration.

Inspiration Sources
You can use any of our images or find your own.
– Plaza Image Library
– Survey of Plaza ideas from NWA
– Use our Presentation Slides
– Pinterest
– Mural inspirations
– Ideas for integrating water + art
CREATE YOUR DESIGN CONCEPT
Instructions for Teachers and Students
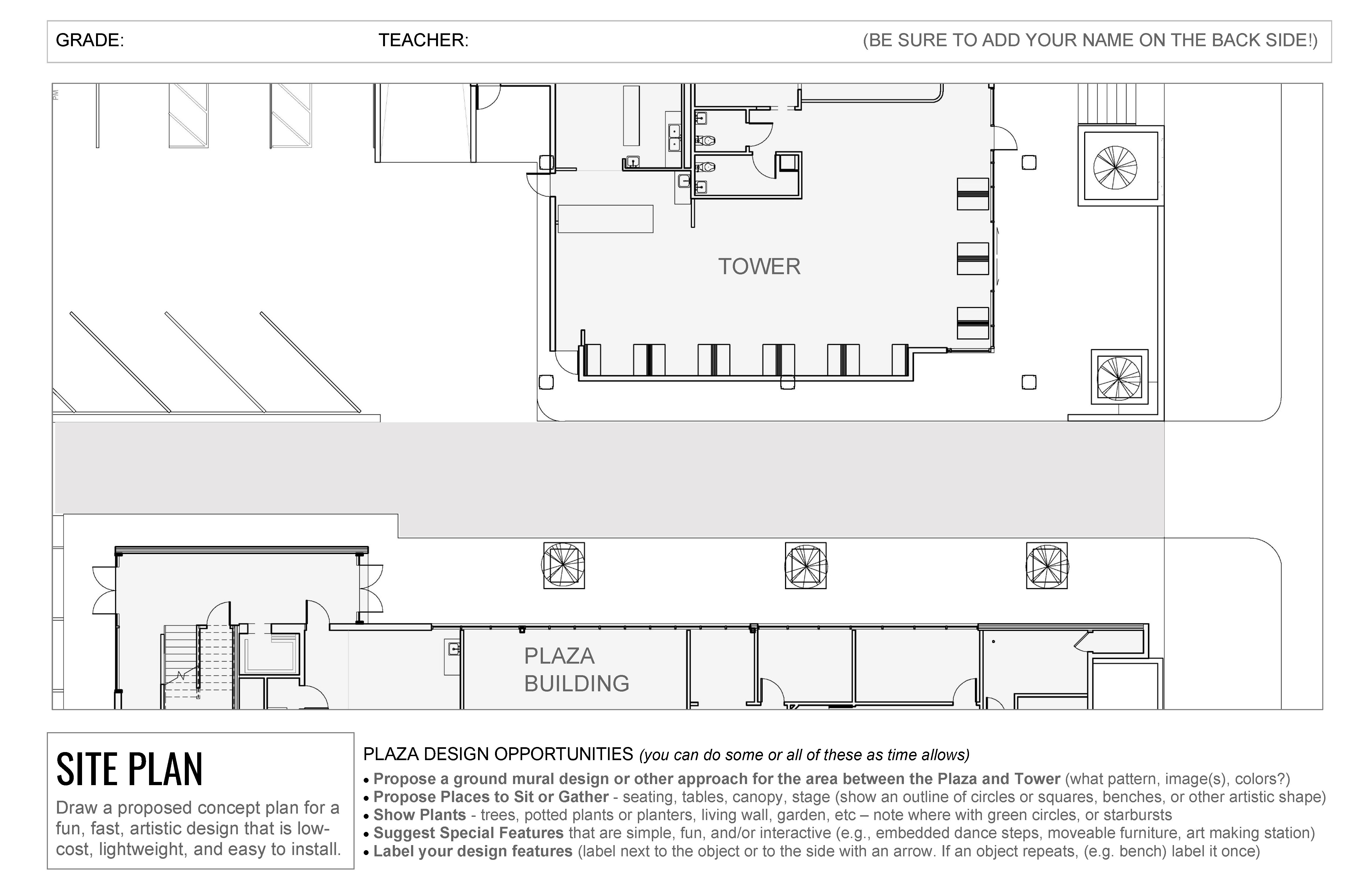
Quick Option 1: Use one or more of the design templates. You can illustrate your ideas visually or describe it with words. Instructions are on the front of each pre-formatted template. A priority is the ground mural on the Site Plan Template, everything else is a bonus.
Those that want to develop more ideas can use the additional templates, or use the extra architectural drawings and/or work “outside the box” (see option 2 below).
(Additional architectural drawings available here with larger stand alone images)
Option 2: Create your own design representations. These might include sketches, models, digital representations, or other ideas to create a proposed plan. Click through the slides below to see examples.
DEADLINE, SUBMISSION & PRIZES
Submit your ideas by May 22, 6 pm and then you’ll have a chance to win a prize! You can take a photo or scan and email it to lisa.twinpower@gmail.com

PRIZES: $50 each for the following submissions*
- Top 2 Most Creative/Inventive Designs (written or drawn)
- Most Comprehensive and Well Thought-out Design (all the boxes are complete on the template and clearly represented)
*For fairness to those that have already submitted your design plans on paper, but wish to add or update these, you can download your submission here, add to it and resubmit.
QUESTIONS?
If you have questions about the plaza design project, contact Heather Flint Chatto, foragedesigner@gmail.com or Lisa Young, Chair of the Programming Committee lisa.twinpower@gmail.com.









